Eladó családi ház Inárcs 47 000 000 Ft

Leírás

Inárcs nagyközségben kínálok megvételre egy kiváló lehetőségeket rejtő, úgynevezett „ráckevei gyorsházat”, amely szerkezetében a panelépítéshez hasonló, előregyártott elemekből készült.
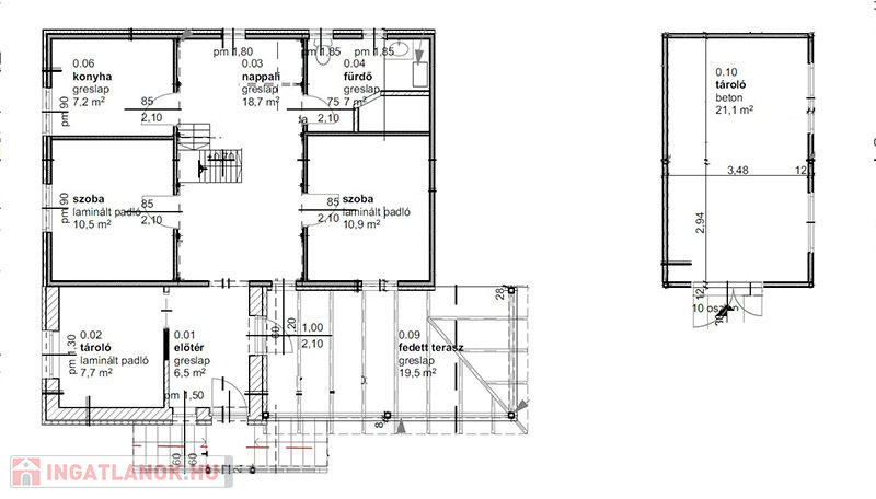
Az ingatlan egy 742 nm-es telken helyezkedik el, nyugodt, élhető környezetben. A ház földszinti alapterülete 68,5 nm, a tetőtérben pedig további 40 nm hasznos tér került kialakításra, így ideális családi otthon 4 szobával.
Az épület külső falazata már 10 cm grafitos hőszigeteléssel részben ellátott, ami kedvező energiahatékonyságot biztosít a későbbiekben. A közművek tekintetében teljes az ellátottság, az ingatlan összközműves. Nyílászárói 2 éve cserélve lettek. Fűtése gázcirkó, radiátorokkal, illetve klíma. A hasznos alapterület egy tágas fedett terasszal van kibővítve. Az ingatlan telekkönyvileg rendezve van, tulajdoni lapján teher nincs bejegyezve. Az épület tervrajzokkal és EMI engedéllyel rendelkezik.
A ház jelenleg befejezetlen állapotban van, ami lehetőséget ad arra, hogy az új tulajdonos saját elképzelései szerint alakítsa ki a belső tereket. Ideális választás mindazoknak, akik nem szeretnének kompromisszumot kötni egy kész ingatlan adottságaival kapcsolatban.
Főbb jellemzők:
• „ráckevei” (előregyártott, panel jellegű) építési technológia
• 68,5 nm földszint (Nappali, 2 szoba, konyha, fürdő, tároló + 40 nm tetőtér (2 szoba)
• 742 nm telek
• 10 cm grafitos hőszigetelés
• összközműves
• befejezetlen állapot – saját igényre alakítható
Amennyiben érdekes lehet önnek ez a családi ház, kérem, keressen a megadott elérhetőségen.

Családi ház részletei

Ár: 47 000 000 Ft
Méret: 108 négyzetméter
Azonosító: 11612792
Telek: 742 négyzetméter
Ingatlan állapota:
Jelleg: családi ház
Építőanyag: Kérdezzen rá a hirdetőtől »
Szintek száma: 2 szint
Egész szobák: 4

Egyéb jellemzők

  • Csatorna
  • Garázs
  • Kábel TV
  • Melléképület
  • Parketta
  • Pince
  • Terasz