Az értékesítő:
Kecskés Zoltán
+36 70 772 2430

Eladó családi ház Inárcs, 47 000 000 Ft, 108 négyzetméter

47 000 000 Ft
családi ház, 108 négyzetméter
Egész szobák:
4
Ingatlan állapota:
Azonosító:
11612792
Értékesítés típusa:
eladó
Ingatlan típusa:
családi ház
Jelleg:
Családi ház
Település:
Inárcs
Alapterület:
108
Telekterület:
742
Ár:
47 000 000 Ft
Szintek száma:
2 szint
Terasz:
Nincs
Erkély:
Van
Melléképület:
Nincs
Pince:
Nincs
Parketta:
Nincs
Kábel TV:
Nincs
Telekterület típusa:
négyzetméter
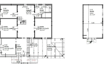
Inárcs nagyközségben kínálok megvételre egy kiváló lehetőségeket rejtő, úgynevezett „ráckevei gyorsházat”, amely szerkezetében a panelépítéshez hasonló, előregyártott elemekből készült. Az ingatlan egy 742 nm-es telken helyezkedik el, nyugodt, élhető környezetben. A ház földszinti alapterülete 68,5 nm, a tetőtérben pedig további 40 nm hasznos tér került kialakításra, így ideális családi otthon 4 szobával. Az épület külső falazata már 10 cm grafitos hőszigeteléssel részben ellátott, ami kedvező energiahatékonyságot biztosít a későbbiekben. A közművek tekintetében teljes az ellátottság, az ingatlan összközműves. Nyílászárói 2 éve cserélve lettek. Fűtése gázcirkó, radiátorokkal, illetve klíma. A hasznos alapterület egy tágas fedett terasszal van kibővítve. Az ingatlan telekkönyvileg rendezve van, tulajdoni lapján teher nincs bejegyezve. Az épület tervrajzokkal és EMI engedéllyel rendelkezik. A ház jelenleg befejezetlen állapotban van, ami lehetőséget ad arra, hogy az új tulajdonos saját elképzelései szerint alakítsa ki a belső tereket. Ideális választás mindazoknak, akik nem szeretnének kompromisszumot kötni egy kész ingatlan adottságaival kapcsolatban. Főbb jellemzők: • „ráckevei” (előregyártott, panel jellegű) építési technológia • 68,5 nm földszint (Nappali, 2 szoba, konyha, fürdő, tároló + 40 nm tetőtér (2 szoba) • 742 nm telek • 10 cm grafitos hőszigetelés • összközműves • befejezetlen állapot – saját igényre alakítható Amennyiben érdekes lehet önnek ez a családi ház, kérem, keressen a megadott elérhetőségen.
https://ingatlanok.hu/elado/haz/inarcs/47-millio-ft;108-negyzetmeter;4-szoba;nincs-megadva-futes/11612792